
Informations générales
Normandie Calvados Branville
14430 BRANVILLE
14430 BRANVILLE
Annonce déposée
Diagnostic de performance énergétique
logement extrêmement performant
logement extrêmement peu performant
* dont émissions de gaz à effet de serre
peu d'émissions de CO₂
logement extrêmement peu performant
Détail de l'annonce
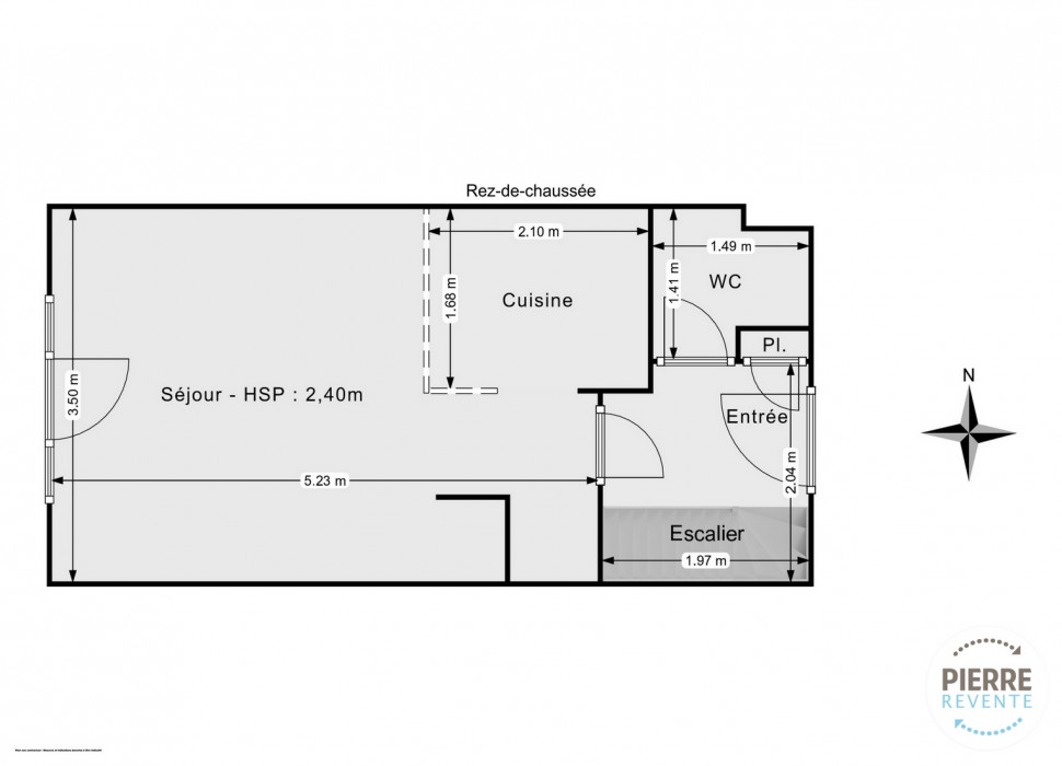
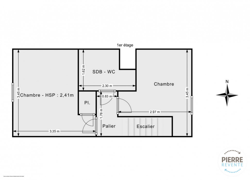
A proximité des prestigieuses stations balnéaires de Deauville et Cabourg, à quelques pas de Caen et 2h de Paris, le Village Club Normandy Garden de Branville accueille les vacanciers, au coeur du pays d'Auge. De nombreuses activités sportives en famille et bien-être sont proposées au sein du village. Des clubs enfants sont disponibles de 3 mois à 17 ans. Un espace aquatique avec eaux chaudes et lagon extérieur sauront satisfaire tous les résidents.La résidence "Les Colombages du Garden Club" propose des logements en maison ou appartement, entièrement meublés et équipés avec terrasse ou balcon.
Village club avec nombreuses activités pour toute la famille
Domaine de 12 hectares constitué de 8 quartiers piétonniers
Bar, restaurant, supérette, espace aquatique, espace détente, clubs enfants et ados
Signaler l'annonce
Village club avec nombreuses activités pour toute la famille
Domaine de 12 hectares constitué de 8 quartiers piétonniers
Bar, restaurant, supérette, espace aquatique, espace détente, clubs enfants et ados
Statistiques de l'annonce
Référence :426
Dernière visite le :
Nombre de vues :0
Consultation téléphone :0
Messages envoyés :0













