
Informations générales
Nouvelle-Aquitaine Gironde Saint-Jean-d'Illac
33127 SAINT-JEAN-D'ILLAC
33127 SAINT-JEAN-D'ILLAC
Annonce déposée
Diagnostic de performance énergétique
logement extrêmement performant
logement extrêmement peu performant
* dont émissions de gaz à effet de serre
peu d'émissions de CO₂
logement extrêmement peu performant
Détail de l'annonce
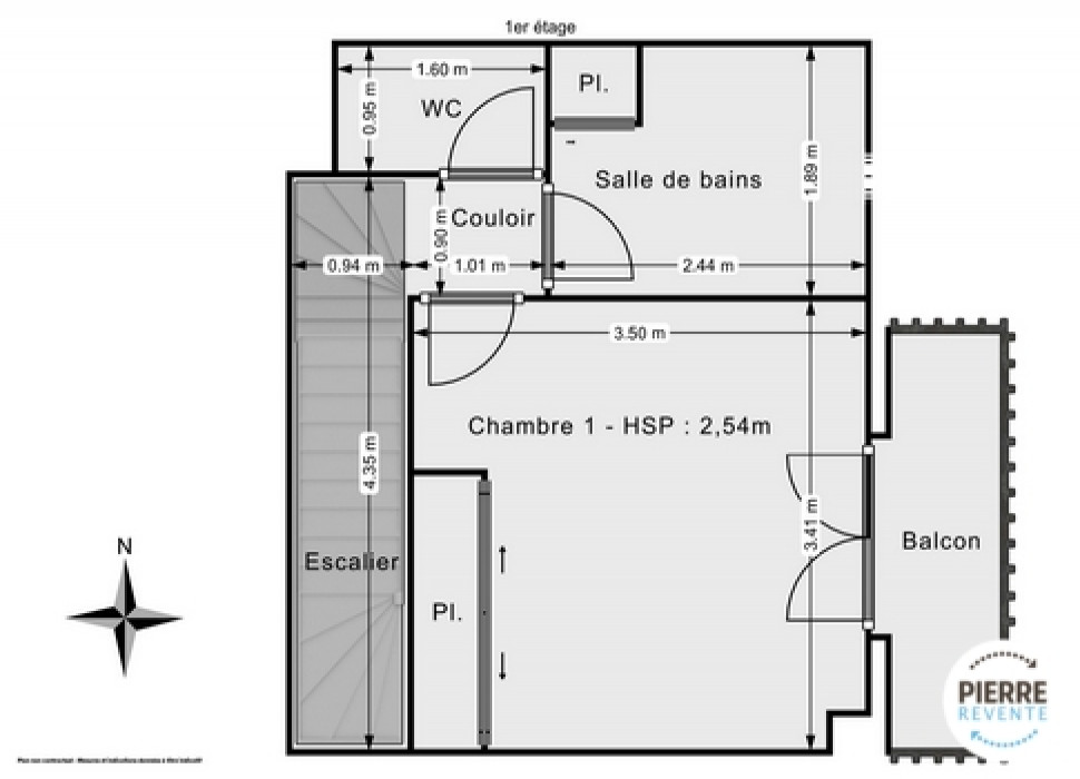
Saint-Jean-d'Illac est une commune à l'Ouest de Bordeaux, à 30 minutes du centre-ville et 15 minutes de l'aéroport.La résidence Bordeaux aéroport *** est idéalement située, proche de tous commerces, à 15 minutes de l'aéroport, 30 minutes de la gare Bordeaux St-Jean et du centre-ville.Elle propose des appartements confortables, entièrement meublés et équipés, allant du studio-4 personnes au 4 pièces-8 personnes avec balcon ou terrasse pour certains.Une piscine extérieure ouverte en saison, un sauna, une laverie automatique, un service petit-déjeuner, restauration, ménage ainsi qu'un un parking sont à la disposition des résidents.
Proche de tous commerces
Piscine extérieure ouverte en saison
Services para-hôteliers
Signaler l'annonce
Proche de tous commerces
Piscine extérieure ouverte en saison
Services para-hôteliers
Statistiques de l'annonce
Référence :223
Dernière visite le :
Nombre de vues :0
Consultation téléphone :0
Messages envoyés :0













